NUOVO CANTIERE RESIDENZIALE – SOLUZIONI MODERNE E INDIPENDENTI

€ 225.000

Dettagli

Riferimento
Riferimento
605377
Tipologia
Tipologia
Appartamento
Comune
Comune
Verdello
Contratto
Contratto
in vendita
Superficie
Superficie
102 m2
Locali
Locali
3
Camere
Camere
2
Altre Stanze
Altre Stanze
2
Bagni
Bagni
2
Cucina
Cucina
A vista
Box
Box
Doppio
Giardino
Giardino
Privato
Classe
Classe
Signorile
Anno Costruzione
Anno Costruzione
2026
Piano
Piano
Piano Terra
Vista
Vista
Giardino
Riscaldamento
Riscaldamento
Autonomo
Impianto Riscaldamento
Impianto Riscaldamento
A Pavimento
Alimentazione Riscaldamento
Alimentazione Riscaldamento
Fotovoltaico
Climatizzazione
Climatizzazione
Freddo/Caldo
Infissi
Infissi
Triplo Vetro - PVC
Classe Energetica
Classe Energetica
A4 - L 90/2013

Descrizione

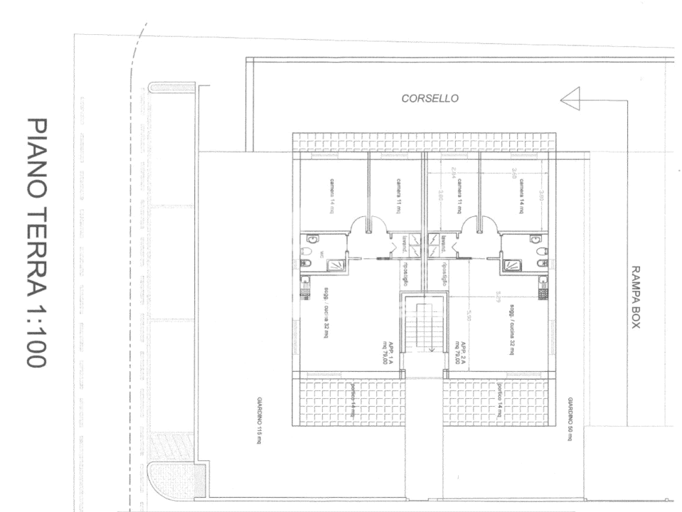
In fase di realizzazione 2 palazzine da sole 4 unità ciascuna, per un totale di 8 abitazioni tutte diverse tra loro per metrature, disposizione interna e dimensione del giardino. Un progetto studiato per garantire privacy, comfort e qualità costruttiva, con una caratteristica oggi sempre più ricercata: assenza totale di spese condominiali. Caratteristiche del complesso: Box doppi al piano interrato, Locali sgombero/cantine collegati direttamente ai box, Nessuna gestione condominiale, Classe energetica A4 Soluzioni GREEN ad alto risparmio energetico, Garanzie fideiussorie e decennale postuma come previsto dalla normativa sulle nuove costruzioni APPARTAMENTO 2A – PIANO TERRA CON GIARDINO PRIVATO Soluzione al piano terra composta da: Ampia zona giorno con soggiorno e cucina di oltre 30 mq, Due comode camere da letto, Bagno principale, Secondo bagno/lavanderia, Giardino privato di 50 mq, ben organizzabile grazie alla disposizione funzionale degli spazi Al piano interrato troviamo: Locale sgombero/cantina compreso nel prezzo Possibilità di box doppio a partire da € 19.000. Per maggiore comodità e facilità di accesso, il box abbinato a questo appartamento è il n. 3, di circa 30 mq, al prezzo di € 24.000. Previsto recupero fiscale del 36% sul costo di costruzione del box, secondo normativa vigente. Perché scegliere questa soluzione? Indipendenza e privacy, Spazi accessori collegati direttamente al box efficienza energetica massima (Classe A4), Costi di gestione ridotti nel tempo Investimento sicuro in nuova costruzione, una proposta ideale per chi desidera una casa moderna, efficiente e senza spese condominiali.

Caratteristiche

  •  Balcone
  •  Terrazzo
  •  Cantina
  •  Mansarda
  •  Ripostiglio
  •  Lavanderia
  •  Camino
  •  Idromassaggio
  •  Accesso disabili
  •  Porta Blindata
  •  Allarme
  •  Cancello Elettrico
  •  Videocitofono
  •  Ascensore
  •  Piscina
  •  Campo da tennis
  •  Palestra