Bilocale di Nuova Ristrutturazione – Ultimo Piano, Classe Energetica Elevata

€ 115.500

Dettagli

Riferimento
Riferimento
604558
Tipologia
Tipologia
Appartamento
Comune
Comune
Verdello
Contratto
Contratto
in vendita
Superficie
Superficie
51 m2
Locali
Locali
2
Camere
Camere
1
Altre Stanze
Altre Stanze
1
Cucina
Cucina
A vista
Box
Box
Assente
Giardino
Giardino
Nessuno
Anno Costruzione
Anno Costruzione
2026
Piano
Piano
2
Vista
Vista
Urbana
Riscaldamento
Riscaldamento
Autonomo
Impianto Riscaldamento
Impianto Riscaldamento
A Pavimento
Classe Energetica
Classe Energetica
A4 - L 90/2013

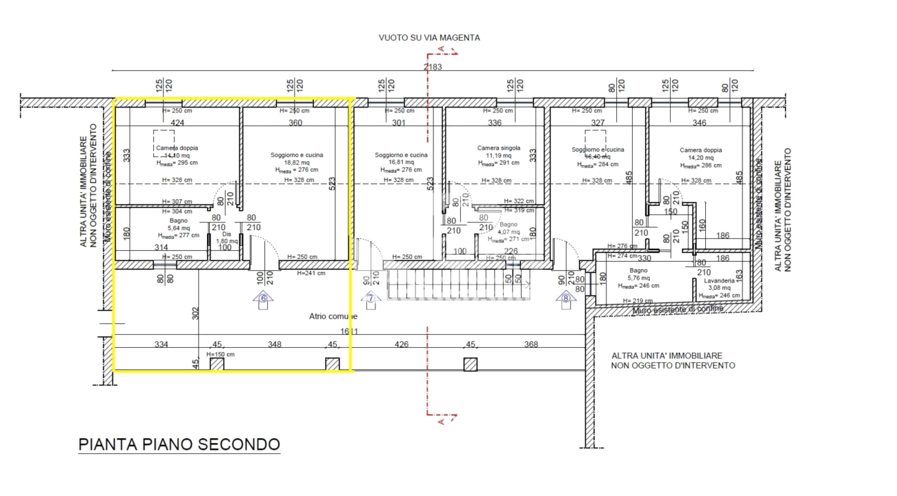
Descrizione

Bilocale di Nuova Ristrutturazione – Ultimo Piano, Classe Energetica Elevata Proponiamo in vendita un bilocale di 38,56 mq, completamente ristrutturato a nuovo e realizzato secondo i più moderni criteri costruttivi, progettati per garantire altissima efficienza energetica e consumi ridotti. La soluzione, situata al 2° ed ultimo piano, offre ambienti luminosi e ben distribuiti: soggiorno con cucina a vista, camera matrimoniale, bagno finestrato, disimpegno funzionale. La chicca è il terrazzo esclusivo di mq. 23.31. La posizione è particolarmente strategica e comodissima per chi utilizza il treno, rendendo l’immobile ideale sia come prima casa pratica e moderna, sia come investimento facilmente locabile. Un appartamento pari al nuovo, curato in ogni dettaglio e pronto da vivere. Verdello, è un paese da sempre importante per la posizione strategica, la statale 42 collega Treviglio a Bergamo. La cittadina gode di una delle tratte ferroviarie più importanti della zona, che collega BG-MI-BS. A soli 5 km da Verdello verso nord-est troviamo l'uscita dall'autostrada A4 (MI-VE) casello Dalmine, mentre a 7km da Verdello verso sud-ovest troviamo l'uscita dall'autostrada A4 (MI-VE) di Capriate San Gervasio. Da oltre 32 anni, Lo Studio Casa Verdello continua a perfezionare i suoi servizi immobiliari effettuando regolarmente corsi di formazione al fine di restare sempre aggiornati alle numerose e più recenti e vigenti normative. La sua mission è la compravendita e l'affitto di immobili, fungendo da mediatore tra le parti nel corso della trattativa. Lo Studio Casa Verdello, inoltre, al fine di erogare la massima qualità del servizio, effettua una accurata selezione, proponendo al cliente solo le soluzioni che soddisfano le sue esigenze ottimizzando tempi e risorse per una efficiente ed efficace conclusione dell’affare. Lo Studio Casa Verdello offre ai suoi clienti servizi che includono la costante fornitura di informazioni complete, la predisposizione di tutta la documentazione contrattuale per le parti interessate, i servizi legali, l’assistenza notarile, la predisposizione dell’assicurazione e tutte le successive ed eventuali attività di post vendita. Studio Casa Verdello, via Donizetti, 9 Tel 035/872605…….comprare e vendere con noi è tutta un’altra cosa…..

Caratteristiche

  •  Terrazzo
  •  Ripostiglio
  •  Camino
  •  Idromassaggio
  •  Accesso disabili
  •  Porta Blindata
  •  Allarme
  •  Cancello Elettrico
  •  Videocitofono
  •  Ascensore
  •  Piscina
  •  Campo da tennis
  •  Palestra